Viktorijas iela 1

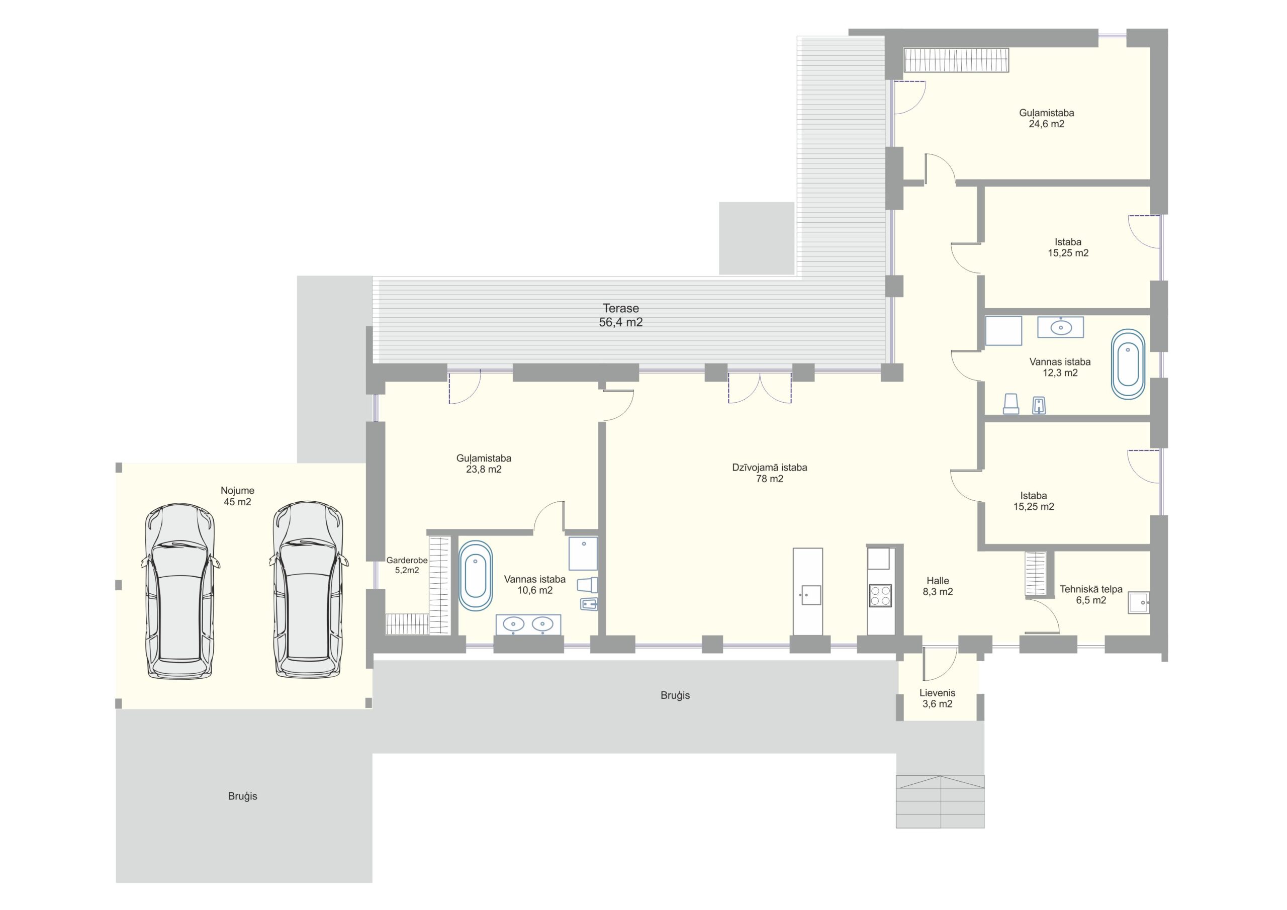
Īpašums sastāv no:
– 1200 m2 liela zemes gabala;
– Viena stāva dzīvojamās mājas ar kopējo platību 305 m2;
– Dzīvojamā platība 200 m2;
– Terase 105 m2;
– Garāžas 2 automašīnām.
Projekts GREY STONE VILLAS 2024. gadā ir saņēmis Būvniecības gada balvu nominācijā ”Jauna dzīvojamā ēka”.
Plānojums veidots tā, lai būtu pēc iespējas efektīvāks –liela viesistaba ar virtuves zonu, trīs guļamistabas, darba kabinets, divas plašas vannasistabas un noliktavas telpa. 3.10 metru augstie griesti rada vēl lielāku plašuma un brīvības izjūtu.
Apdarē izmantotas itāļu akmens masas flīzes, “Boen” ozola dēļu siltās grīdas, kā arī augstākās kvalitātes “Geberit” santehnika, “Axor” ūdens krāni un “PAA” akmens masas vannas.
Pašlaik GREY STONE VILLAS ir viens no kvalitatīvākajiem privātmāju ciematiem Pierīgā, projekts atbilst “tuvu nulles enerģijas ēkas” prasībām, kas nozīmē, ka ikmēneša uzturēšanas maksa nepārsniedz 200 EUR. Turklāt, ja būsi devies izbraukumā un izslēdzis visas sistēmas, tad rēķini būs tuvu nullei. Tas ir iespējams, pateicoties pārdomātai tehnoloģiju izvēlei, piemēram, “Bosch” zemes siltumsūknim ar siltajām grīdām, ko uzskata par pašlaik efektīvāko, izdevīgāko un mūsdienīgāko mājas apsildes risinājumu. Tāpat villās ietilpst rekuperācijas sistēma ar gaisa mitruma vadību, kas nodrošinās pastāvīgi ideālu klimatu un mitruma līmeni, nesatraucotes par uzsildītā gaisa zudumiem. Liela nozīme ir arī augstākās kvalitātes alumīnija stikla logu konstrukcijām ar trīs stiklu paketēm bez horizontāliem dalījumiem – tās nodrošinās izcilu siltumizolāciju.
Ieguldiet savā nākotnē: Premium nekustamie īpašumi Jums
Atklājiet mūsu rūpīgi atlasīto premium nekustamo īpašumu kolekciju, kas piedāvā ne tikai greznu dzīvesveidu, bet arī ilgtermiņa vērtību. Katrs īpašums ir veidots ar izcilu uzmanību pret detaļām, lai nodrošinātu maksimālu komfortu un prestižu. Piesakieties, lai uzzinātu vairāk par mūsu ekskluzīvajiem piedāvājumiem un atrodiet savu ideālo mājvietu jau šodien.
Apskatīt vairāk
Sazinieties ar mūsu pārdošanas speciālistiem šodien
Vai vēlaties iegūt vairāk informācijas par mūsu premium nekustamajiem īpašumiem? Mūsu pieredzējušie pārdošanas speciālisti ir gatavi jums palīdzēt. Spiediet pogu zemāk, lai iegūtu viņu kontaktinformāciju.
Sazināties
Kādēļ dzīvot šeit?
Izvēloties mūsu premium īpašumus, jūs ne tikai iegādājaties māju, bet arī kļūstat par daļu no ekskluzīvas kopienas. Uzziniet, kā mūsu iedzīvotāji ir atraduši ideālo dzīvesvietu un piedzīvojuši augstākās klases komfortu un ērtības. Iepazīstieties ar viņu stāstiem un uzziniet, kāpēc mūsu īpašumi ir labākā izvēle.



